
cad建筑施工图课程
课时:请咨询
班型:任意时段
班制:一对一
适合对象:1、从事建筑方面工作,想学习CAD设计画图的学员。
开课时间:随到随学
优惠价:
¥1200
课程详情
学习目标
1、名师一对一,手把手讲课,独创的多元法教学模式让你快速掌握当下的知识体系,使你学以致用。
2、让学员亲自实操绘制工程图纸与设计,使学生增强实战就业能力,以达到毕业即能就业的目的。
3、优秀学员免费推荐就业,课程学习无时间和次数限制。
课程大纲:
一、CAD施工图制图设计课程
学制:15天左右,教会为止,不限时间,一年内免费学习。
【教学模式】
1、成都高升电脑培训【10年专注电脑设计培训,一对一教学,随到随学,教会为止,免费重学】
2、随时报名开班、上课灵活,有白班、晚班、周末班,按学员的学习时间来上课。
3、全职老师教学,课后人性化一对一辅导全程跟进。
4、上班时间:周一至周日:10:00-20:00
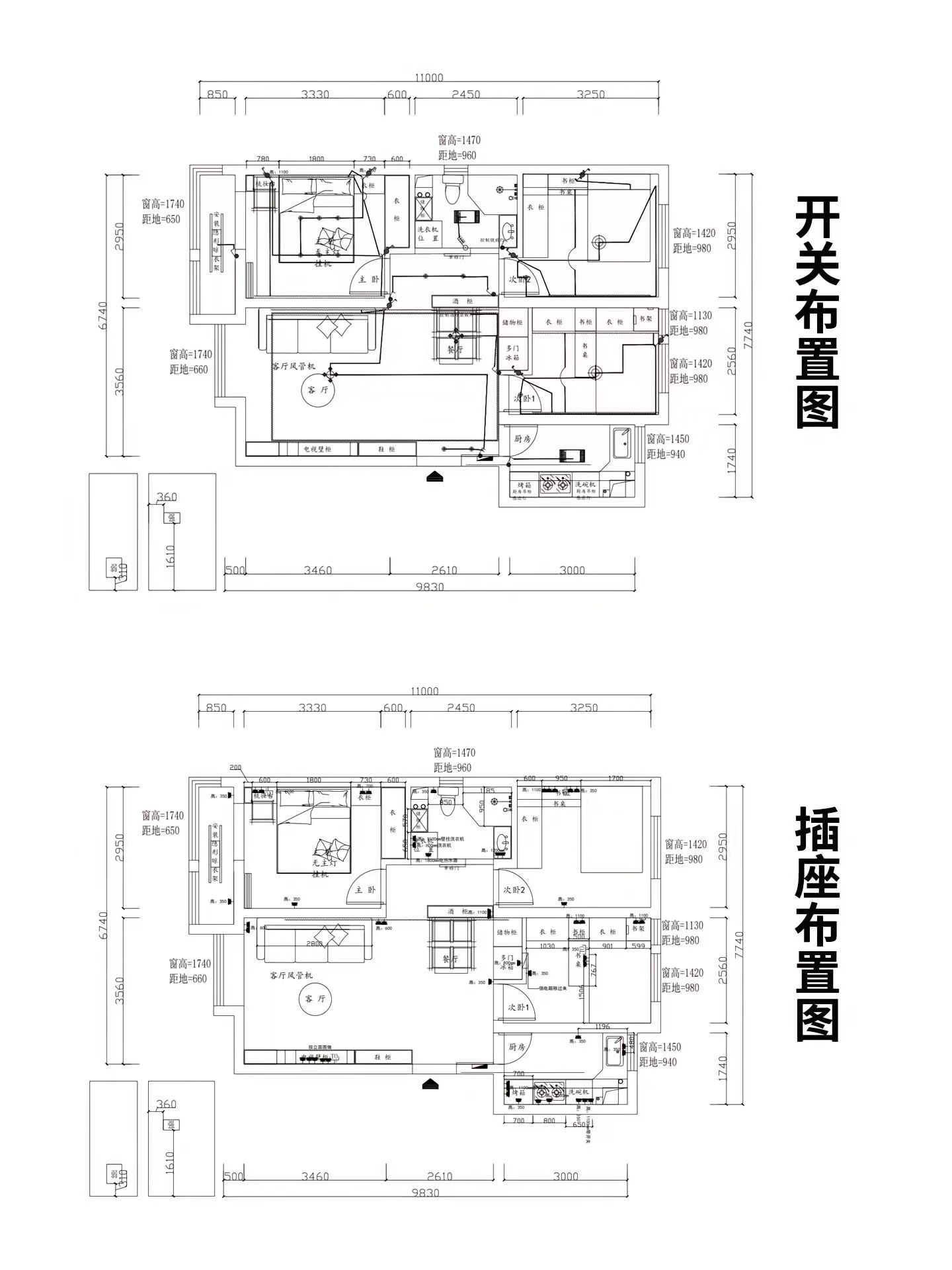
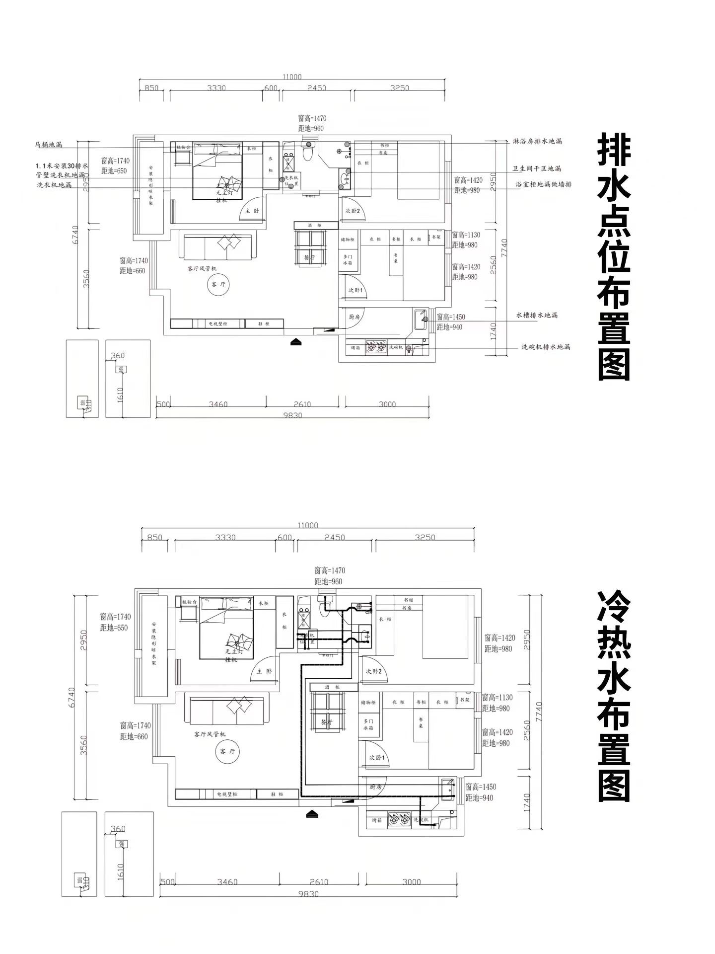
课程内容太多,无法全部展示,详情请咨询陈老师!
课程内容太多,无法全部展示,详情请咨询陈老师!
课程内容太多,无法全部展示,详情请咨询陈老师!






